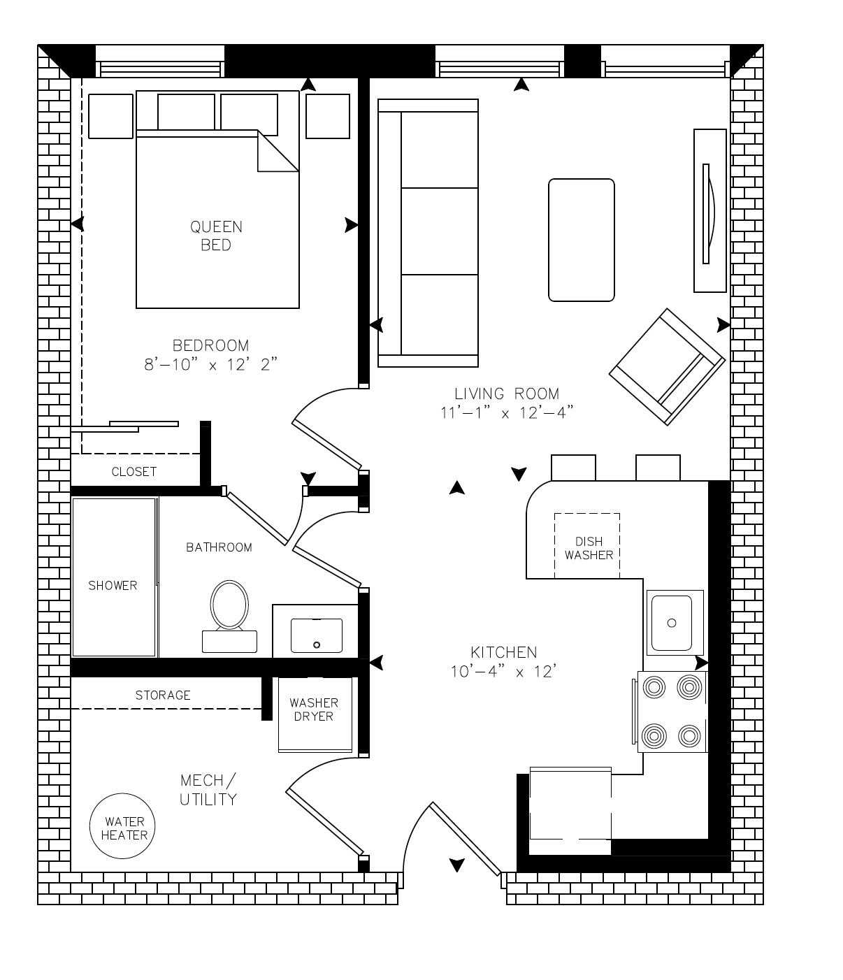
TILLSON - UNIT 104

1 Bedroom, 1 Bath

Located on the lower-level, this suite is stunning, with natural light windows, granite counter-tops, custom trim, exposed brick, and brand new hardwood floors.

Level: 100 Level

Size: 490 sq.ft

Suite: 104

Book a Showing
 

Standard Features:

  • Smart Thermostats

  • Custom Blinds

  • Designer Bathroom

  • Tin ceiling tile feature

  • Air-conditioning

  • Dishwasher

  • Stainless Steel Appliances

  • In-Suite Laundry

Additional Features:

  • Hardwood Floors

  • Sunset view

  • Barrier Free Wheelchair Accessible

  • Exposed brick

Unit Location:

 
 
10408082_10153246960512311_1128152789963766959_n.jpg

History

Tillsonburg Public School was the original school building located on Rolph Street before it was rebuilt and then subsequently renamed. The land was purchased from the Tillson family for a nominal fee and the first school built in 1872, the year that the Town was incorporated. The cornerstone of the original school was placed into its final position by Mr. E.D. Tillson.

School's history